Planos para Farmacéuticas
Elaboro planos para farmacias, laboratorios y espacios farmacéuticos, adaptados a requisitos funcionales, zonas técnicas y recorridos internos.
Espacios funcionales
Circulaciones
Zonas técnicas
DWG + PDF
¿Qué incluyen estos planos?
Los planos para espacios farmacéuticos incluyen:
- ✓Distribución de mostradores, zonas de atención y almacenamiento
- ✓Zonas técnicas y de laboratorio
- ✓Circulaciones de personal y clientes
- ✓Plano acotado y organizado por capas
- ✓Entrega en AutoCAD y PDF
¿Para qué sirven?
Estos planos especializados son útiles para:
- •Planificar reformas o adecuaciones de farmacias
- •Documentar el estado actual de un local
- •Coordinar trabajos con reformistas y proveedores
Aviso legal: Estos planos son de delineación y apoyo gráfico. No sustituyen proyectos técnicos ni documentación que deba ser firmada por un técnico competente.
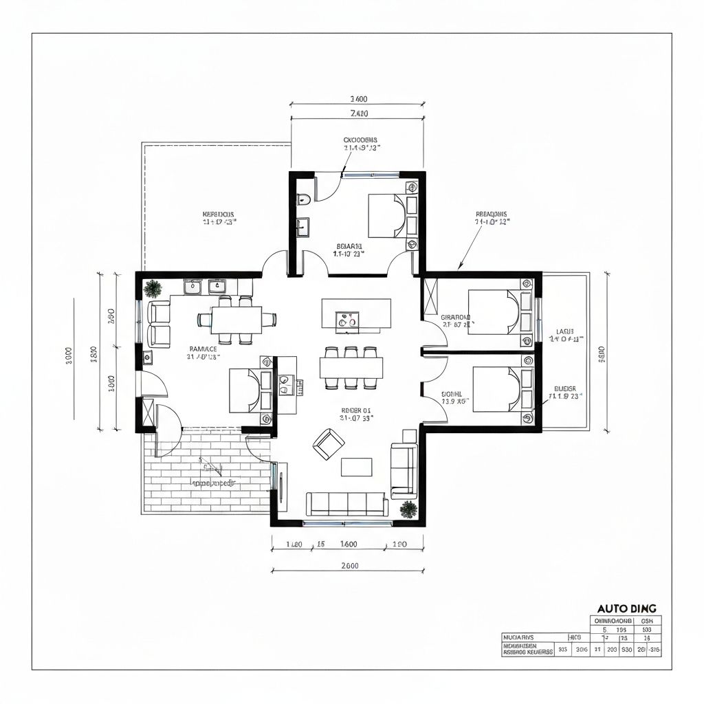
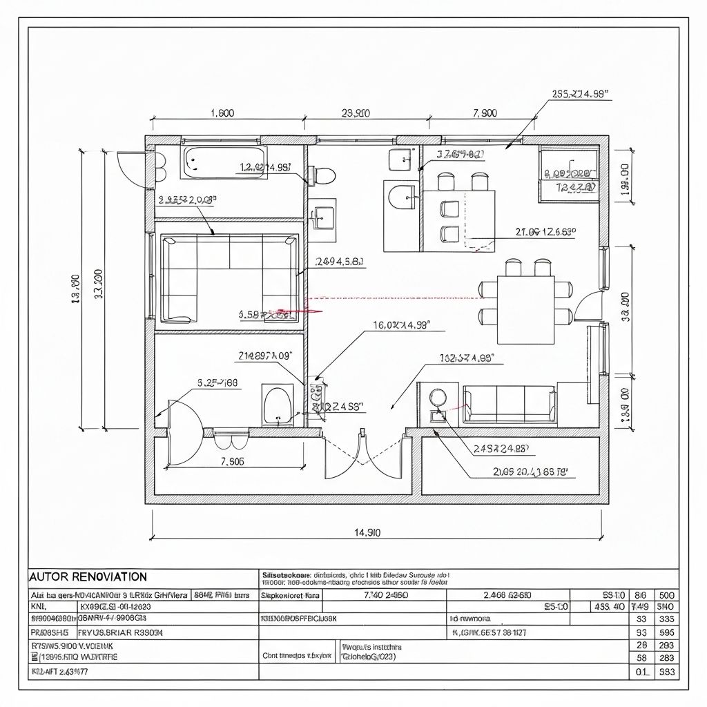
Ejemplos de planos farmacéuticos
Ejemplos de planos para farmacias y espacios sanitarios.

Distribución de farmacia

Zonas técnicas laboratorio

Plano de circulaciones

Espacios farmacéuticos
Precios
Se trata de un servicio muy específico, por lo que trabajo con presupuesto personalizado según:
- •Tipo de espacio (farmacia, laboratorio, almacén)
- •Superficie
- •Nivel de detalle requerido
Cuéntame las características de tu proyecto y te preparo un presupuesto a medida.
¿Necesitas planos para una farmacia o laboratorio?
Cuéntame el tipo de espacio y el estado actual del local y te preparo un presupuesto.
Solicita tu presupuesto sin compromiso
Rellena el formulario y te responderé lo antes posible
¿Necesitas un plano? Te preparo un presupuesto hoy.
Envíame las fotos o planos actuales por WhatsApp y te respondo lo antes posible.